Positioned in the desirable Katholiki area of Limassol, this contemporary off-plan development blends architectural clarity with refined detailing and quality craftsmanship. Designed for modern urban living, the project offers a limited collection of elegant residences within close reach of key city amenities.
Property Overview
Property Type: Residential Apartment
Location: Katholiki, Limassol
Floor: 2nd Floor
Status: Off-Plan
Completion Date: March 2029
Energy Efficiency: Grade A+
Apartment Specifications
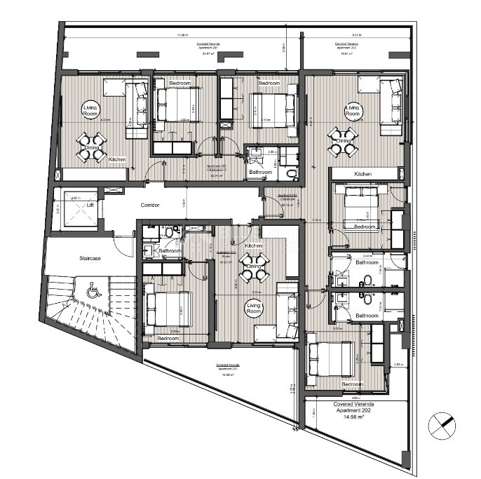
Total Covered Area: 100m²
Internal Covered Area: 80m²
Covered Veranda: 20m²
Bedrooms: 2
Master bedroom with en-suite shower
Bathrooms:
1 Family Bathroom
This spacious 2-bedroom apartment features a well-balanced layout designed to maximize comfort and functionality. The open-plan living and dining area extends seamlessly onto a generous 20m² covered veranda, offering excellent outdoor living space ideal for relaxing or entertaining.
The master bedroom benefits from a private en-suite shower, while the second bedroom is served by a modern family bathroom—making the property suitable for couples, professionals, or small families.
Location Highlights
100m from a school
300m from public transport
400m from amenities
1.6km from the beach
3km from a resort
50km from the airport
Its central setting ensures convenience, accessibility, and strong long-term investment potential within Limassol’s evolving residential market.
Key Advantages
Contemporary architectural design
Spacious 100m² covered area
Private master en-suite
Large covered veranda
A+ energy efficiency rating
Excellent investment or permanent residence opportunity
1. What floor is the apartment located on?
The apartment is situated on the 2nd floor of the development, offering privacy and elevated city views.
2. What is the total size of the apartment?
The total covered area is 100m², comprising:
80m² internal covered area
20m² covered veranda
3. Does the apartment have an en-suite bathroom?
Yes. The master bedroom includes a private en-suite shower, in addition to a separate family bathroom.
4. When is the project expected to be completed?
The development is scheduled for completion in March 2029.
5. What is the energy efficiency rating?
The building has an A+ energy efficiency rating, ensuring lower electricity consumption and reduced running costs.
6. Is the property suitable for investment?
Yes. Located in Katholiki, Limassol, the apartment benefits from strong rental demand, central accessibility, and long-term capital appreciation potential.
7. How close is the property to key amenities?
100m from a school
300m from public transport
400m from everyday amenities
1.6km from the beach
50km from the airport
8. Is this apartment suitable for permanent residence?
Absolutely. With two bedrooms, a spacious veranda, and a functional layout, it is ideal for couples, professionals, or small families seeking modern city living.
For further details, floor plans, and availability, feel free to get in touch.