Modern Second Floor Office for Rent in Central Pafos

  • Pafos, Paphos
  • 1 Baths
  • Ref: 30679
€3,500/month
Add to Favorites

Property details

  • Property type: Office
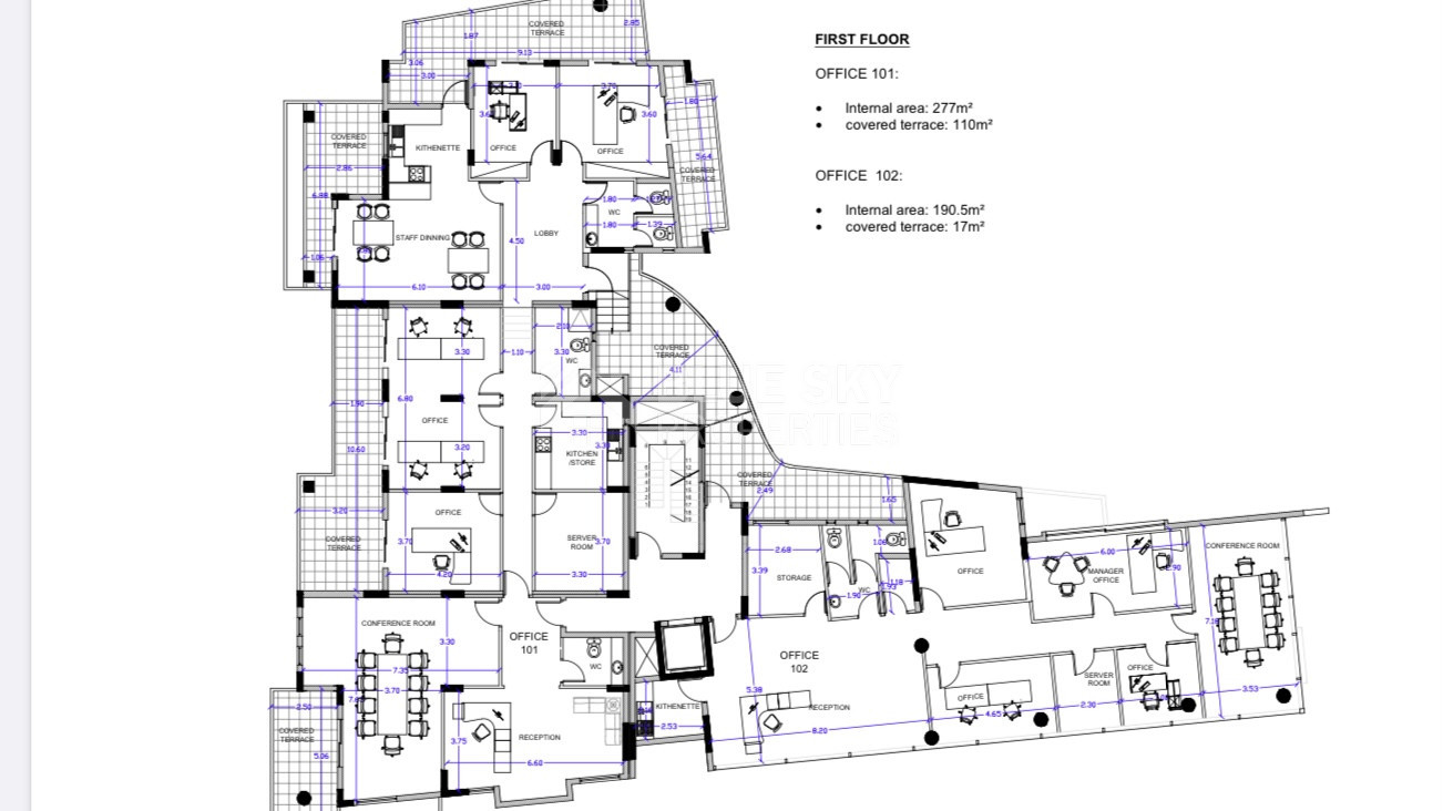
  • Total covered area: 277 m²
  • Covered veranda area: 110 m²
  • Bathrooms: 1
  • Toilets: 4
  • Showers: 1
  • Floor: 2
  • Floors: 3
  • Parking spaces: 2
  • Kitchens: 1

Other information

  • Furnished: Unfurnished
  • Year of renovation: 2025
  • Status: Used
  • Energy efficiency rating: A

Property description

For rent: Modern office space in the heart of Pafos, offering a generous internal area of 277 sq.m. This property is located on the first floor of a well-maintained three-storey building. The office is secondary market, but underwent a full renovation in 2025, ensuring a fresh and contemporary environment for your business needs. The open plan layout allows for flexibility in creating the ideal workspace. A clean, well-appointed bathroom is included.

The office boasts top energy efficiency with an A rating, helping you minimize utility costs while maintaining a comfortable indoor climate. Large windows bring in plenty of natural light, creating a bright and productive atmosphere. Please note, the space is offered unfurnished, giving you the freedom to design it according to your preferences.

Situated in Pafos, a city known for its vibrant business and cultural life, you will benefit from easy access to main roads, public transport, and a variety of amenities. Pafos is an area valued for its rich history, scenic landscapes, and dynamic commercial scene, making it a desirable location for any organization.

Features

  • Aircondition, Split system
  • Parking, Underground

Similar properties

Spacious three storey office for rent,  in Agios Theodoros area , in Paphos

Spacious three storey office for rent, in Agios Theodoros area , in Paphos

Agios Theodoros, Paphos
  • Ref: 32149
€2,500/month
Prime Location Spacious Ground Floor Office for Rent in Paphos

Prime Location Spacious Ground Floor Office for Rent in Paphos

Pafos, Paphos
  • 1 Baths
  • Ref: 32054
€3,500/month
Top Floor Seaview Office in Paphos for rent

Top Floor Seaview Office in Paphos for rent

Pafos, Paphos
  • Ref: 30680
€2,700/month+VAT
First Floor Office for Rent in Central Pafos

First Floor Office for Rent in Central Pafos

Pafos, Paphos
  • Ref: 30677
€2,500/month
Modern First Floor Office for Rent in Central Pafos

Modern First Floor Office for Rent in Central Pafos

Pafos, Paphos
  • 1 Baths
  • Ref: 30676
€3,500/month
Office To Rent In Pafos Paphos Cyprus

Office To Rent In Pafos Paphos Cyprus

Pafos, Paphos
  • 4 Beds
  • 2 Baths
  • Ref: OR-111948
€2,500/month
Contact us